DVOJNOSNÍKOVÝ PORTÁLOVÝ ŽERIAV ZVP-KBK

PRODUKTY | PORTÁLOVÉ ŽERIAVY | DVOJNOSNÍKOVÝ PORTÁLOVÝ ŽERIAV ZVP-KBK

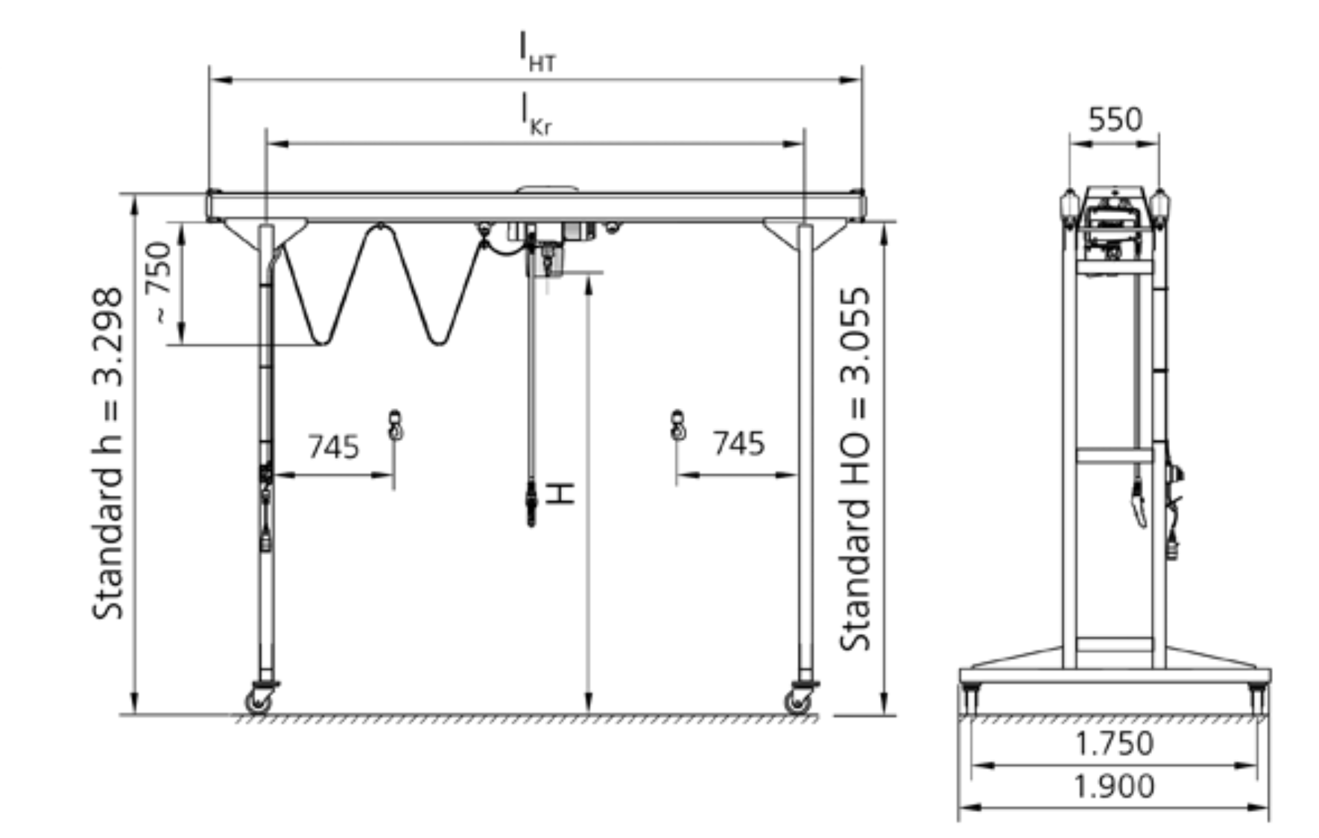
Technické parametre

 

Nosnosť 400 kg
Rozpätie 2 300 mm – 5 300 mm
Dĺžka nosníka 3 000 mm – 6 000 mm
Max. výška zdvihu 2 671 mm
Nosnosť 500 kg
Rozpätie 2 300 mm – 5 300 mm
Dĺžka nosníka 3 000 mm – 6 000 mm
Max. výška zdvihu 2 619 mm
Nosnosť 630 kg
Rozpätie 2 300 mm – 5 300 mm
Dĺžka nosníka 3 000 mm – 6 000 mm
Max. výška zdvihu 2 619 mm
Nosnosť 800 kg
Rozpätie 2 300 mm – 4 300 mm
Dĺžka nosníka 3 000 mm – 5 000 mm
Max. výška zdvihu 2 619 mm
Nosnosť 1 000 kg
Rozpätie 2 300 mm – 4 300 mm
Dĺžka nosníka 3 000 mm – 5 000 mm
Max. výška zdvihu 2 755 mm

Súbory na stiahnutie

Scroll to Top

Some of the clients

Volkswagen Bratislava a.s.
KIA Motors Slovakia a.s.
HYUNDAI HMMC
ŠKODA
INA Skalica
PSA PEUGEOT Trnava
Citroen
Ford
Mercedes
Audi
All references